This website uses modern construction techniques, which may not render correctly in your old browser.
We recommend updating your browser for the best online experience.

Visit browsehappy.com to help you select an upgrade.

Skip to Content

Bayway Village

1126 Nelson Bay Road
Fern Bay 2295 New South Wales

Pet Friendly New Home
  • 3 bedroom
  • 2 bathroom
  • 2 carparks

Contact Agent

enquire now

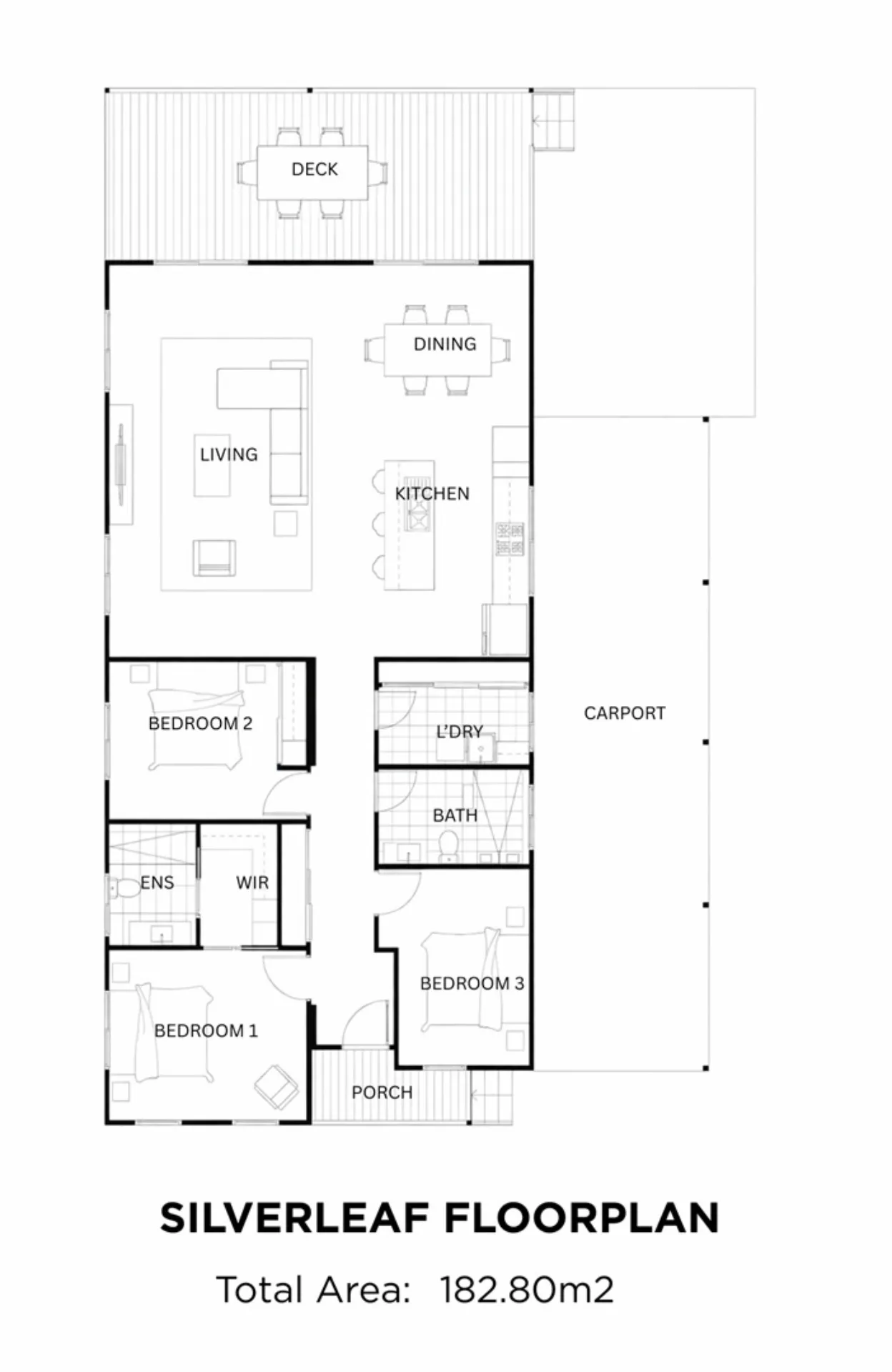
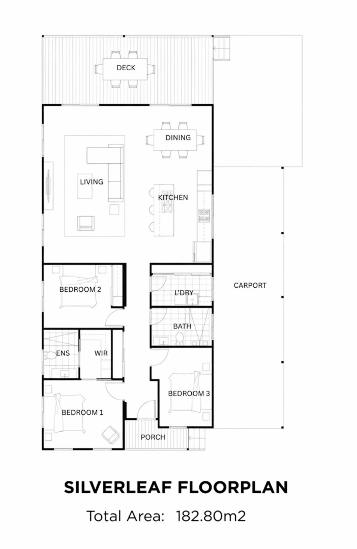
Bayway Village - Silverleaf

Welcome to the Silverleaf – a thoughtfully designed 3-bedroom, 2-bathroom home that offers low-maintenance living without compromise. Located within the friendly and secure Bayway Village community, this single-level home is perfect for over 50s seeking a relaxed, comfortable lifestyle.

Enjoy light-filled, open-plan living with a modern kitchen featuring a stone island bench, quality appliances, and a handy breakfast bar. The spacious living and dining areas flow effortlessly onto a private covered deck – perfect for entertaining or enjoying your morning cuppa.

The generous main bedroom includes a built-in robe and ensuite, while the two additional bedrooms can be used as a guest room or study. A full laundry, quality fittings throughout, reverse-cycle air conditioning and ceiling fans ensure year-round comfort. The double carport completes this easy-care package.

With both standard and modified floor plans available, the Silverleaf lets you choose the layout that best suits your lifestyle.

Bayway Village offers an easy, low-maintenance lifestyle in a welcoming community setting — with all the comfort of owning your own home, without the usual costs that can come with traditional property ownership. With land lease living, there’s no stamp duty, no council rates, and no exit fees, making it a smart choice for downsizers who want to simplify without compromise. Add in a friendly village atmosphere and pet-friendly living, and it’s easy to see why Bayway feels like home from the moment you arrive.

Take a tour.

Explore what this community has to offer and see where carefree living begins.

Book a tour

Bayway Village

Fern Bay

Experience relaxed lifestyle living with everything close by.

  • New Home
  • Community Centre
  • Swimming pool
  • Bowling green
  • Tennis court
  • Games room
  • Croquet Field
  • Cinema
  • Gym

book a tour
  • 1 of 9
  • 2 of 9
  • 3 of 9
  • 4 of 9
  • 5 of 9
  • 6 of 9
  • 7 of 9
  • 8 of 9
  • 9 of 9

More than a home, it's your village.

Imagine waking up each day surrounded by welcoming neighbours, with the freedom to enjoy life on your own terms. 

This is a place where downsizing doesn’t mean compromising - where you can enjoy modern, low-maintenance living, resort-style facilities and a friendly community spirit.

Whether it’s joining in social activities, taking a dip in the pool, or simply relaxing in the comfort of your own home, everything here is designed to make life simpler, more secure and more rewarding.

Homes for sale

  • No stamp duty
  • No Exit fees
  • No council rates
  • Keep capital gains

Take the first step towards
hassle-free retirement.

  • Step 1
    Tour your village
  • Step 2
    Choose your home
  • Step 3
    Enjoy your retirement

Contact us.

Ready to explore carefree community living?

Submit our form and we'll call you soon to answer questions or organise a personal village tour.

Prefer to phone? Give us a call during business hours.

Monday to Friday, 10:00 am - 4:00 pm

02 4928 2929

Name

By entering your details, you agree to Hampshire’s Privacy Policy and Collection Statement. We may also send you updates about our homes and villages; you can opt out at any time.